Công ty CENTA triển khai thiết kế và thi công các hạng mục như phòng khách, phòng bếp, phòng sinh hoạt chung và Phòng thờ theo phong cách Á Đông cho gia đình nhà chị Quy – Huyện Thọ Xuân, Thanh Hóa.
- Tên dự án : Thiết kế và thi công biệt thự vườn diện tích nhỏ phong cách Á Đông
- Chủ đầu tư : Chị Quy
- Địa chỉ : Xã Xuân Trường- Huyện Thọ Xuân – Tỉnh Thanh Hóa
- Diện tích Xây dựng: 156m2

Phối cảnh tổng thể nhà vườn Thanh Hóa

Mặt bằng cải tạo khu đất

Mặt bằng cải tạo chi tiết khu đất

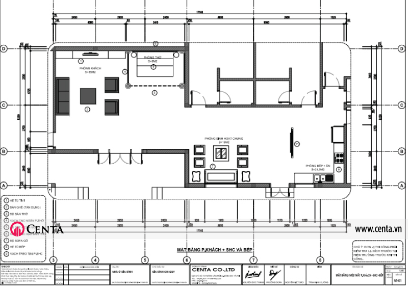
Mặt bằng phòng khách + SHC và bếp

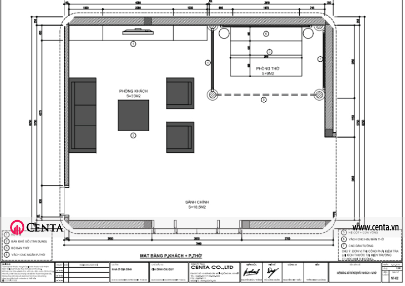
Mặt bằng phòng khách và phòng thờ
Dưới đây là một số phối cảnh 3D và các hạng mục mà CENTA đã thực hiện thiết kế và thi công cho gia đình chị Quy

Phong cách giản dị nhẹ nhàng nhưng không kém phần sang trọng
Ngôi nhà vườn được KTS vận dụng thiết kế sáng tạo, khai thác các không gian nội thất tạo thành những khu vực chuyển tiếp đặc sắc. Với mục đích tạo ra một ngôi nhà thoáng mát và tràn đầy sinh khí, kiến trúc sư đã thiết kế không gian nửa kín nửa hở. Các khu vực chức năng khác nhau như phòng khách , phòng bếp, phòng ăn được ngăn bằng tấm bình phong trang trí đẹp mắt.
Theo sự tư vấn của CENTA, Chủ nhà đã chọn phong cách Á Đông làm phong cách chủ đạo trong các không gian chính trong nhà như Kiến trúc mặt tiền, Phòng khách, Phòng bếp, phòng sinh hoạt chung và phòng thờ.

Không gian phòng sinh hoạt chung ấm cúng, yên tĩnh nhẹ nhàng mà thanh thoát

Theo như phương án ban đầu của KST phòng bếp , phòng ăn được liên hoàn với nhau để tiết kiệm diện tích và thông qua vách ngăn tới phòng sinh hoạt chung. Tuy nhiên phương án cuối cùng chủ nhà muốn phòng ăn rộng rãi hơn để mỗi khi gia đình sum họp quây quần nên quyết định dịch chuyển bàn ăn sang phòng sinh hoạt chung còn lại tất cả vẫn giữ nguyên bản thiết kế của KTS
Bàn thờ là nơi thể hiện lòng thành kính của con cháu đối với tổ tiên, nên gia đình chị Quy muốn bàn thờ được lập ở chính giữa gian giữa của ngôi nhà – là vị trí trang trọng nhất. Và với sự sự kết hợp khéo léo và tinh tế giữa phòng khách và phòng thờ trên tổng diện tích 43,5m2 KTS của centa đưa ra phương án làm phòng thờ với 6 cột chính trong đó có 4 cột nguyên và 2 bán cột.
Tuy nhiên trong quá trình thiết kế và thi công, chủ nhà có tham khảo một số ý kiến và quyết định nhờ KTS thay đổi một chút để không gian trở nên thoáng đãng và rộng hơn với 4 cột trong đó 2 cột chính và 2 bán cột.
Bàn thờ là nơi thể hiện lòng thành kính của con cháu đối với tổ tiên, nên gia đình chị Quy muốn bàn thờ được lập ở chính giữa gian giữa của ngôi nhà – là vị trí trang trọng nhất.

Toàn bộ trần gỗ được thiết kế tỉ mỉ và sang trọng, thể hiện được thần thái của gia chủ
Dưới đây là những bản vẽ kỹ thuật chi tiết đồ Nội thất của ngôi nhà

Bản vẽ chi tiết chân cột

Mặt đứng vị trí cửa vòng phòng thờ

Mặt đứng chi tiết vách CNC

Mặt đứng phòng thờ

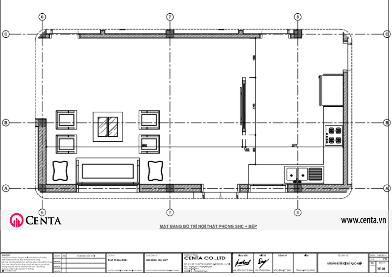
Mặt bằng bố trí nội thất phòng SHC + Bếp

Mặt bằng chi tiết trần phòng SHC + Bếp

Mặt đứng bố cục và laminate
Chúng tôi đem lại dịch vụ chất lượng cao cho khách hàng, đáp ứng mọi yêu cầu về chất lượng, thẩm mĩ, công năng sử dụng. Thời gian thiết kế nhanh, đảm bảo chất lượng cho khách hàng cùng với đội ngũ KTS thiết kế đến Kỹ sư nhiệt tình, có tâm huyết trải qua quá trình thi công nhiều công trình. Centa chính là đối tác tin tưởng để thiết kế và thi công nội thất cho gia đình bạn.
Tham khảo thêm về thiết kế biệt thự
Các bạn có thể tham khảo một số bài về bàn thờ tại đây :
1. Những mẫu bàn thờ đẹp và hợp phong thủy
2. Các kiểu bàn thờ và cách bố trí bàn thờ mang lại may mắn, thịnh vượng
3. Tư vấn vị trí đặt bàn thờ trong căn hộ chung cư ( Video)
Dịch vụ thiết kế thi công nội thất biệt thự
![]() |
|










