Tư vấn Thiết kế nội thất Nhà mẫu liền kề Gamuda Land phong cách hiện đại
Một số thông tin chính của dự án:
- Tên dự án: Thiết kế nội thất nhà lô phố thuộc khu nhà mẫu liền kề
- Chủ đầu tư: Công ty Gamuda Land
- Địa chỉ: Khu đô thị Gamuda Gardens – Km 44, Pháp Vân, Hoàng Mai, Hà Nội
- Phong cách: Hiện đại
- Diện tích mặt sàn: 110m2
- Năm thực hiện: 2018
- Không gian chính: 4 tầng nội thất chính + 1 tầng áp mái
Thông tin về chủ đầu tư dự án: Công ty Gamuda Land
Gamuda Land được thành lập năm 2007, là công ty bất động sản thành viên tại Việt Nam của tập đoàn xây dựng hàng đầu châu Á – Gamuda Berhad, Malaysia nổi tiếng với nhiều khu đô thị đẳng cấp mang tầm cỡ lớn như: Kota Kemuning, Madge Mansions, Horizon Hills, Valencia, Bandar, Jade Hills, Gamuda Garden…
Toạ lạc tại cửa ngõ phía Nam Hà Nội, Khu đô thị Gamuda Gardens trải rộng 73ha được đánh giá là khu đô thị sống lý tưởng cho dân cư, với những khu nhà lô phố, biệt thự liền kề kết hợp nhiều dịch vụ tiện tích đa dạng.
Và công ty TNHH CENTA vô cùng vinh dự khi được lựa chọn là nhà thầu tổ chức thiết kế chính cho căn nhà lô phố mẫu 5 tầng trong Khu đô thị Gamuda Garden lý tưởng.
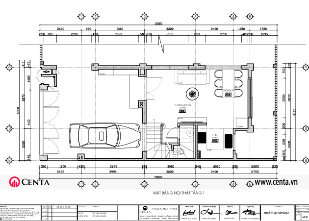
Mặt bằng thiết kế nhà Gamuda

Mặt bằng bố trí nội thất nhà mẫu Gamuda – tầng 1
PHỐI CẢNH THIẾT KẾ NỘI THẤT DỰ ÁN NHÀ LÔ PHỐ – NHÀ MẪU GAMUDA
TẦNG 1: PHÒNG KHÁCH + PHÒNG BẾP, ĂN


Phối cảnh thiết kế nội thất phòng khách bếp nhà mẫu Gamuda – 2

TẦNG 2: PHÒNG NGỦ MASTER

Phối cảnh thiết kế nội thất phòng ngủ master nhà mẫu Gamuda – 1

Phối cảnh thiết kế nội thất phòng ngủ master nhà mẫu Gamuda – 2

Phối cảnh thiết kế nội thất phòng ngủ master nhà mẫu Gamuda – 3
TẦNG 2: PHÒNG NGỦ ÔNG BÀ

Phối cảnh thiết kế nội thất phòng ngủ ông bà nhà mẫu Gamuda – 1

Phối cảnh thiết kế nội thất phòng ngủ ông bà nhà mẫu Gamuda – 2

Phối cảnh thiết kế nội thất phòng ngủ ông bà nhà mẫu Gamuda – 3
TẦNG 2: PHÒNG SINH HOẠT CHUNG

Phối cảnh thiết kế nội thất phòng sinh hoạt chung nhà mẫu Gamuda – 1

Phối cảnh thiết kế nội thất phòng ngủ ông bà nhà mẫu Gamuda – 1
TẦNG 3: PHÒNG NGỦ CON

Phối cảnh thiết kế nội thất phòng ngủ con nhà mẫu Gamuda – 1

Phối cảnh thiết kế nội thất phòng ngủ con nhà mẫu Gamuda – 2

Phối cảnh thiết kế nội thất phòng ngủ con nhà mẫu Gamuda – 3
>> Xem thêm: Nét đẹp tinh tế trong thiết kế nội thất Tân cổ điển chung cư Mandarin Garden – Hà Nội
thiết kế kiến trúc, nội thất Gamuda
![]() |
|










