Ngày nay, một căn nhà đẹp không chỉ được đảm bảo về công năng mà còn phải đảm bảo các yếu tố thẩm mỹ, thể hiện phong cách cá tính riêng của gia chủ.

THIẾT KẾ NỘI THẤT CHUNG CƯ GỖ TỰ NHIÊN – PHONG CÁCH TRUYỀN THỐNG
Với đội ngũ Kiến trúc sư dày dặn kinh nghiệm và tâm huyết, CENTA tự tin là đơn vị Thiết kế – Thi công nội thất hàng đầu, đem đến cho không gian sống nhà bạn một sức sống mới, phong cách mới. Hãy cùng CENTA chiêm ngưỡng mẫu thiết kế nội thất dành cho nhà ở chung cư (khách hàng: Anh CƯờng – Times City Park Hill) sau đây…
MỘT SỐ THÔNG TIN VỀ DỰ ÁN
Tên dự án: Thiết kế nội thất chung cư
Chủ đầu tư: Anh Cường
Địa chỉ: Times City Park Hill – 458 Minh Khai, Hai Bà Trưng, Hà Nội
Phong cách: Art & Crafts
Diện tích mặt sàn: 185m2
Năm thực hiện: 2017
Không gian chính: Có 07 phòng chức năng: 01 phòng khách, 01 phòng bếp , 01 phòng ăn (kết hợp bàn làm việc), 1 phòng ngủ Master + 03 phòng ngủ con (kèm nhà vệ sinh)

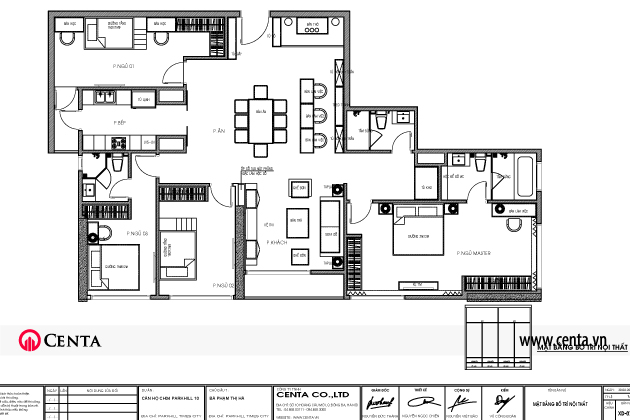
Mặt bằng bố trí nội thất – Chung cư Park Hill 10 Time City
Phong cách Art & Crafts là một trào lưu nghệ thuật rất được ưa chuộng trong các lĩnh vực: kiến trúc, thiết kế nội thất, hội họa… Art & Crafts thường sử dụng nhiều chất liệu gỗ, đồ thủ công, các vật liệu pha trộn hài hòa sắc màu và ánh sáng tự nhiên sẽ được sử dụng nhiều hơn để tăng tính tự nhiên trong các mẫu thiết kế.
“Đơn giản – Nghệ thuật” là những gì mà chúng ta ấn tượng đầu tiên khi nhìn thấy một căn nhà được thiết kế theo phong cách Art & Crafts. Nó tạo lên một sự thú vị từ những gì đơn giản nhất, lấy cảm hứng từ thiên nhiên với chất liệu gỗ là chủ yếu, đồng thời hòa trộn sáng tạo giữa các yếu tố cổ điển – hiện đại để làm nên nét độc đáo riêng.
PHỐI CẢNH KHÔNG GIAN NỘI THẤT PHÒNG KHÁCH

Không gian nội thất phòng khách – View 01

Không gian nội thất phòng khách – View 02
PHỐI CẢNH KHÔNG GIAN NỘI THẤT PHÒNG ĂN + KẾT HỢP BÀN LÀM VIỆC
“Tận dụng không gian tới mức tối đa” là một trong những yếu tố quan trọng cần chú ý đáp ứng trong các thiết kế nội thất chung cư. Với dự án tại khu chung cư Park Hill này, các Kiến trúc sư Thiết kế của CENTA đã cùng Khách hàng trao đổi và đưa ra phương án thiết kế thích hợp nhất, vừa đáp ứng các nhu cầu của gia chủ, vừa tiết kiệm không gian mà vẫn giữ được nét thẩm mỹ cho căn nhà, đó là: đặt bàn làm việc kết hợp cùng không gian phòng ăn.

Không gian nội thất phòng ăn – view 02

Không gian nội thất phòng ăn – view 03

Không gian nội thất phòng ăn kết hợp đặt bàn làm việc – view 04

Không gian nội thất phòng ăn kết hợp đặt bàn làm việc – view 05

Không gian nội thất phòng ăn kết hợp đặt bàn làm việc – view 06
Phòng bếp được thiết kế kép tạo một khoảng không gian thoáng đãng ở giữa khu vực đi lại…

Bố trí nôi thất phòng bếp – View 01

Bố trí nôi thất phòng bếp – View 02
PHÒNG NGỦ MASTER

Không gian nội thất phòng ngủ Master – View 01

Không gian nội thất phòng ngủ Master – View 02

Không gian nội thất phòng ngủ Master – View 03

Không gian nội thất phòng ngủ Master – View 04
KHÔNG GIAN NỘI THẤT PHÒNG NGỦ CON

Không gian nội thất phòng ngủ con 1 – View 01

Không gian nội thất phòng ngủ con 1 – View 02

Không gian nội thất phòng ngủ con 2 – View 01

Không gian nội thất phòng ngủ con 2 – View 02

Không gian nội thất phòng ngủ con 3
PHÒNG VỆ SINH

Không gian nội thất phòng vệ sinh – View 01

Không gian nội thất phòng vệ sinh – View 02

Không gian nội thất phòng vệ sinh – View 03

Không gian nội thất phòng vệ sinh – View 03
CENTA tiếp tục nhận được sự tin tưởng của Khách hàng khi là nhà thiết kế, đồng thời là đơn vị thi công chính cho dự án Park Hill – Anh Cường: Thi công nội thất hoàn thiện chung cư ParkHill 10, Times City – Hà Nội
Hãy liên hệ với CENTA để được tư vấn, thiết kế & thi công hoàn thiện Nội thất Căn hộ có phong cách, có dấu ấn của riêng bạn!
![]() |
|










