Thiết kế biệt thự Vinhomes
Đơn giản mà không mất đi vẻ sang trọng, tinh tế cùng thanh lịch – đó là những nét đặc trưng trong nội thất, kiến trúc phong cách Tân cổ điển biệt thự, dinh thự, nhà phố. Hãy cùng CENTA chiêm ngưỡng phối cảnh thiết kế nội thất Tân cổ điển cực ấn tượng cho biệt thự nhà anh Đức – Khu đô thị Vinhomes Riverside, Hà Nội ngay lúc này.
Thông tin thiết kế
- Tên dự án: Thiết kế nội thất biệt thự Tân cổ điển
- Chủ đầu tư: Anh Đức
- Địa chỉ: Biệt thự Hoa Sữa, khu đô thị Vinhomes Riverside, Long Biên, Hà Nội
- Phong cách: Tân cổ điển
- Diện tích đất: 100m2
- Diện tích sử dụng: Dài 12 x Rộng 7,1m / Diện tích xây kiên cố: Dài 12 x Rộng 7,1 / Diện tích xây không kiên cố: Dài 2.5 x Rộng 4m
- Hướng công trình: Đông Nam
- Năm thực hiện: 2017
Thiết kế không gian biệt thự Vinhomes
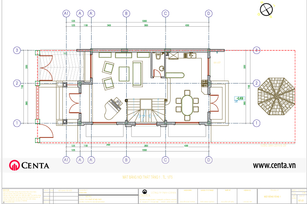
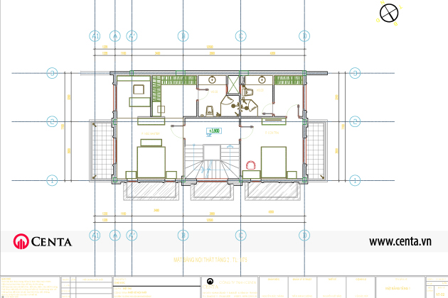
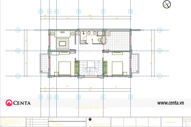
- Không gian chính: Có 07 phòng chức năng, bố trí thành 3 tầng, 1 tum tầng 3 xây hết mặt trước:
- + 02 phòng tầng 1: phòng khách, phòng bếp.
- + 02 phòng tầng 2: Phòng ngủ bố mẹ, phòng ngủ con trai (khi lớn).
- + 03 phòng tầng 3: 1 phòng thờ, 2 phòng ngủ cho 2 con gái.
- Ngoài ra có 01 gara ô tô, 01 sân vườn, chòi câu cá.
Phong cách nội thất trong nhà phần nào thể hiện phong thái và tính cách của gia chủ. Chính vì thế, khách hàng luôn có những yêu cầu và mong muốn được sở hữu một tổ ấm với thiết kế nội thất vừa đảm bảo thẩm mỹ, vừa có cá tính độc đáo, đồng thời phù hợp với công việc, mệnh căn của chủ nhà.
Biết lắng nghe và thấu hiểu thị hiếu của khách hàng, các Kiến trúc sư của chúng tôi đã dùng tài năng và kinh nghiệm của mình thiết kế phối cảnh nội thất nhà anh Đức (biệt thự Hoa Sữa – Vinhomes Riverside) và được khách hàng rất ưa thích. Cùng chiêm ngưỡng một số hình ảnh phối cảnh thiết kế dưới đây của dự án nào!

Mặt bằng bố trí nội thất tầng 1

Mặt bàng bố trí nội thất tầng 2

Mặt bằng bố trí nội thất tầng 3
Phối cảnh thiết kế biệt thự Vinhomes
TẦNG 1: PHÒNG KHÁCH, PHÒNG BẾP KÈM PHÒNG ĂN

Không cầu kỳ, rườm rà và xa hoa như phong cách cổ điển, nội thất tân cổ điển chỉ nhẹ nhàng ghi dấu ấn bằng những chi tiết trên phào chỉ, mặt phẳng của trần, tường và sự kết hợp tinh ý của các món đồ nội thất. Tuy nhiên, sự giản dị ấy dường như lại đem đến một sự tinh tế, thoải mái hơn cho căn phòng. Như một sự hài hòa giữa cổ điển và hiện đại, sang trọng nhưng không phô trương, nhẹ nhàng mà gợi cảm.

Phối cảnh thiết kế nội thất trong phòng khách cực kỳ hài hòa. Bộ ghế sofa da bọc nệm màu xanh đen, kết hợp khung gỗ trên phần lưng tựa và chân ghế. Chiếc bàn, kệ tivi, cửa chính, tay vịn cầu thang đều được thiết kế từ gỗ tự nhiên màu nâu trầm càng làm tăng hơi hướm cổ điển ấn tượng cho căn phòng.

Không gian nội thất phòng khách tầng 1

Các chi tiết hoa văn trên phào chỉ trắng, kết hợp cùng những chiếc đèn tỏa ánh sáng vàng trang trí trên trần, trên mặt tường,… càng làm tôn lên nét cổ kính, bề thế cho căn phòng.

Thiết kế liên thông sảnh phòng khách, phòng bếp và phòng ăn tạo thuận tiện cho sinh hoạt của gia chủ. Nội thất căn phòng chủ yếu được thiết kế bằng chất liệu gỗ nâu trầm kết hợp với ánh sáng của hệ thống đèn trang trí, mang lại cảm giác ấm áp cho bữa cơm thân mật của gia đình

Bàn ăn dáng dài với thiết kế 8 ghế nệm đơn khung gỗ – thuận tiện và phù hợp cho những bữa ăn quây quần đông đủ.
TẦNG 2: PHÒNG NGỦ BỐ MẸ, PHÒNG NGỦ CON TRAI KÈM 2 NHÀ VỆ SINH
PHÒNG NGỦ MASTER

Phòng ngủ master chủ yếu sử dụng đa số nội thất gỗ và lấy gam màu nâu trầm chủ đạo. Nội thất phòng ngủ cao cấp, tiện nghi, sang trọng thể hiện được thần thái của gia chủ và tạo một không gian ấm áp, hài hòa.

Không gian nội thất phòng ngủ master – View 02

Không gian nội thất phòng ngủ master – View 03

Không gian nội thất phòng ngủ master – View 03

Hầu hết nội thất trong phòng ngủ master đều sử dụng gỗ màu nâu trầm, tạo cảm giác ấm áp

Bộ bàn ghế làm việc được đặt ngay trong phòng ngủ, kèm theo đó là kệ giá sách nhiều ngăn cùng tông màu chủ đạo với căn phòng. Tiện lợi mà không mất đi nét thẩm mỹ của căn phòng – đó là dụng tâm tinh tế của các Kiến trúc sư với phối cảnh này.

Bàn làm việc trong phòng ngủ Master


Tủ quần áo chất liệu gỗ màu nâu trầm, nhiều ngăn

NHÀ VỆ SINH PHÒNG NGỦ MASTER

Nhà vệ sinh trong phòng ngủ Master với đầy đủ các vật dụng, thiết bị tiện nghi, hiện đại phục vụ tốt nhu cầu cuộc sống của gia chủ

WC phòng ngủ Master tầng 2 – View 2
PHÒNG NGỦ CON TRAI
Bước chân vào căn phòng ngủ này, bạn sẽ nhận thấy một khí tức tươi mát, thoải mái và dễ chịu bởi sự kết hợp chủ đạo giữa 2 gam màu: Xanh ngọc và trắng. Các đồ nội thất trong phòng cũng được ưu tiên sử dụng các gam màu sáng thanh lịch: giường ngủ, kệ tủ, rèm cửa, bàn học, giá sách…

Phòng ngủ dành cho con trai ở tầng 2 – View 01

Phòng ngủ dành cho con trai ở tầng 2 – View 02

Đồ nội thất đầy đủ và tiện nghi, được sắp xếp khéo léo và đáp ứng tốt cho nhu cầu sử dụng

Phòng ngủ dành cho con trai ở tầng 2 – View 04

Tủ quần áo chất liệu gỗ melamine màu trắng, hiện đại và trang nhã

Phòng ngủ dành cho con trai ở tầng 2 – View 06
WC PHÒNG NGỦ CON TRAI

Kết cấu và thiết nhà vệ sinh trong phòng ngủ con trai tương tự như nhà vệ sinh trong phòng ngủ Master

WC hiện đại và tiện nghi
TẦNG 3: PHÒNG THỜ + 2 PHÒNG NGỦ (CON GÁI VÀ DÀNH CHO KHÁCH) + NHÀ VỆ SINH CHUNG
PHÒNG THỜ

Vẫn với các đồ nội thất chủ yếu là chất liệu gỗ tự nhiên, gam màu màu nâu trầm chủ đạo tạo nên nét uy nghiêm, quý khí cho căn phòng thờ.

Vách CNC họa tiết văn cổ bắt mắt mà không mất đi vẻ trang nghiêm, tôn kính

Hệ thống đèn chiếu sáng nhẹ nhàng, ấm áp

PHÒNG NGỦ DÀNH CHO KHÁCH

Phố cảnh thiết kế nội thất phòng ngủ dành cho khách trên tầng 3 – View 01

Phố cảnh thiết kế nội thất phòng ngủ dành cho khách trên tầng 3 – View 02

Phố cảnh thiết kế nội thất phòng ngủ dành cho khách trên tầng 3 – View 03

Phố cảnh thiết kế nội thất phòng ngủ dành cho khách trên tầng 3 – View 04
PHÒNG NGỦ CON GÁI

Sắc hồng ngọt ngào bao trùm cả căn phòng, thanh thoát và nhẹ nhàng.

Gam màu hồng và trắng là chủ đạo trên mỗi đồ nội thất, thể hiện tính cách của chủ phòng

Tiện nghi và hiện đại, tinh tế mà không mất đi nét cá tính riêng

Dịch vụ thiết kế biệt thự Vinhomes
![]() |
|










