Thiết kế nội thất chung cư 120m2 như thế nào cho hợp lý? Ngày nay các căn hộ chung cư thường ưa chuộng phong cách thiết kế hiện đại hơn cả. Đặc điểm chính của phong cách thiết kế hiện đại là tạo sự phóng khoáng, rộng rãi, tận dụng tối đa các khoảng diện tích trong phòng bằng cách sử dụng các đường nét đơn giản, yếu tố đối xứng và cân bằng, màu sắc tự nhiên…
Các kiến trúc sư đã khéo léo sắp xếp các món đồ nội thất trong phối cảnh thiết kế giúp chúng vừa đảm bảo đầy đủ công năng sử dụng, đồng thời vẫn giữ được yếu tố thẩm mỹ, thanh lịch cho căn phòng. Dưới đây, CENTA xin giới thiệu tới Quý khách hàng cùng chiêm ngưỡng phối cảnh thiết kế nội thất chung cư phong cách hiện đại mà chúng tôi đã thực hiện – Dự án thiết kế nội thất chung cư S2 Sun Grand City nhà anh Lộc – 59 Thụy Khuê, Tây Hồ, Hà Nội.
Một số thông tin chính của dự án:
Tên dự án: Thiết kế nội thất chung cư 120m2
Chủ đầu tư: Anh Lộc
Địa chỉ: Chung cư S2 Sun Grand City – 69 Thụy Khuê, Tây Hồ, Hà Nội
Phong cách: Hiện đại
Năm thực hiện: 2018
Không gian chính: 5 khu vực phòng chức năng: 01 phòng khách bếp + 03 phòng ngủ + 01 phòng tắm
Diện tích: 120m2
Đơn vị thiết kế: Công ty TNHH CENTA
Xem thêm >>Thiết kế và Thi công nội thất chung cư cao cấp Sun Grand City – Hà Nội
Hồ sơ thiết kế Nội thất CENTA gửi cho Khách hàng bao gồm:
– Phối cảnh 3D các phòng (3-4 góc nhìn 1 phòng).
– Mặt bằng nội thất.
– Mặt bằng chi tiết nội thất các phòng.
– Bản vẽ chi tiết đồ đặt đóng các phòng theo thiết kế 3D.
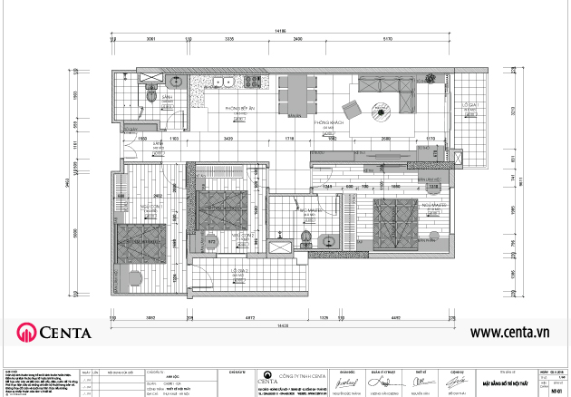
Mặt bằng bố trí nội thất chung cư S2 Sun Grand City

Mặt bằng bố trí nội thất chung cư S2 Sun Grand City
Ngày nay các căn hộ chung cư thường ưa chuộng phong cách thiết kế hiện đại hơn cả. Đặc điểm chính của phong cách thiết kế hiện đại là tạo sự phóng khoáng, rộng rãi, tận dụng tối đa các khoảng diện tích trong phòng bằng cách sử dụng các đường nét đơn giản, yếu tố đối xứng và cân bằng, màu sắc tự nhiên…
Các kiến trúc sư đã khéo léo sắp xếp các món đồ nội thất trong phối cảnh thiết kế giúp chúng vừa đảm bảo đầy đủ công năng sử dụng, đồng thời vẫn giữ được yếu tố thẩm mỹ, thanh lịch cho căn phòng. Dưới đây, CENTA xin giới thiệu tới Quý khách hàng cùng chiêm ngưỡng phối cảnh thiết kế nội thất chung cư phong cách hiện đại mà chúng tôi đã thực hiện – Dự án thiết kế nội thất chung cư 120m2 nhà anh Lộc – 59 Thụy Khuê, Tây Hồ, Hà Nội.
PHỐI CẢNH THIẾT KẾ NỘI THẤT DỰ ÁN CHUNG CƯ S2 SUN GRAND CITY
KHU VỰC PHÒNG KHÁCH + BẾP

Phối cảnh phòng khách bếp – Chung cư S2 Sun Grand City (view 01)

Phối cảnh phòng khách bếp – Chung cư S2 Sun Grand City (view 02)

Phối cảnh phòng khách bếp – Chung cư S2 Sun Grand City (view 03)

Phối cảnh phòng khách bếp – Chung cư S2 Sun Grand City (view 04)

Phối cảnh phòng khách bếp – Chung cư S2 Sun Grand City (view 05)

Phối cảnh phòng khách bếp – Chung cư S2 Sun Grand City (view 06)
VIEW THIẾT KẾ PHÒNG NGỦ 1

Phối cảnh phòng ngủ 1 – Chung cư S2 Sun Grand City (view 02)

Phối cảnh phòng ngủ 1 – Chung cư S2 Sun Grand City (view 03)
VIEW THIẾT KẾ PHÒNG NGỦ 2

Phối cảnh phòng ngủ 2 – Chung cư S2 Sun Grand City (view 01)

Phối cảnh phòng ngủ 2 – Chung cư S2 Sun Grand City (view 02)
VIEW THIẾT KẾ PHÒNG NGỦ 3

Phối cảnh phòng ngủ 3 – Chung cư S2 Sun Grand City (view 01)

Phối cảnh phòng ngủ 3 – Chung cư S2 Sun Grand City (view 01)
Tư vấn, báo giá Thiết kế nội thất chung cư 120m2 và các dịch vụ thiết kế thi công kiến trúc, nội thất biệt thự đẳng cấp nhất!
Tham khảo thêm
- Thiết kế biệt thự tân cổ điển
- Nội thất nhập khẩu
CÔNG TY TNHH CENTA

Trụ sở : Số 10, Hoàng Cầu Mới, Đống Đa, Hà Nội | Tel: 024 6680 3111
Hotline 1: Mr Thành 0944683000 | thanh.centa@gmail.com









